Work
STUDIO
ACADEMIC
CONTACT
Work
STUDIO
ACADEMIC
CONTACT
Dd salone del mobile
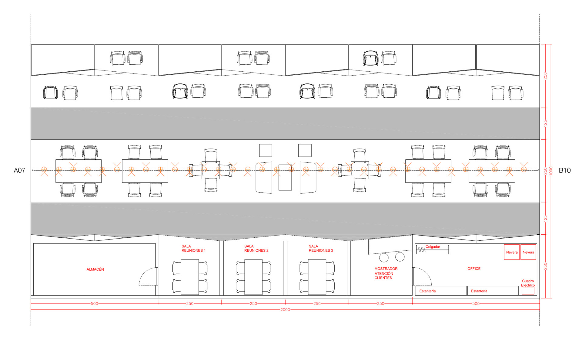
Stand for Barcelona Dd in Salone del Mobile, Milano.
↑
Back to Top