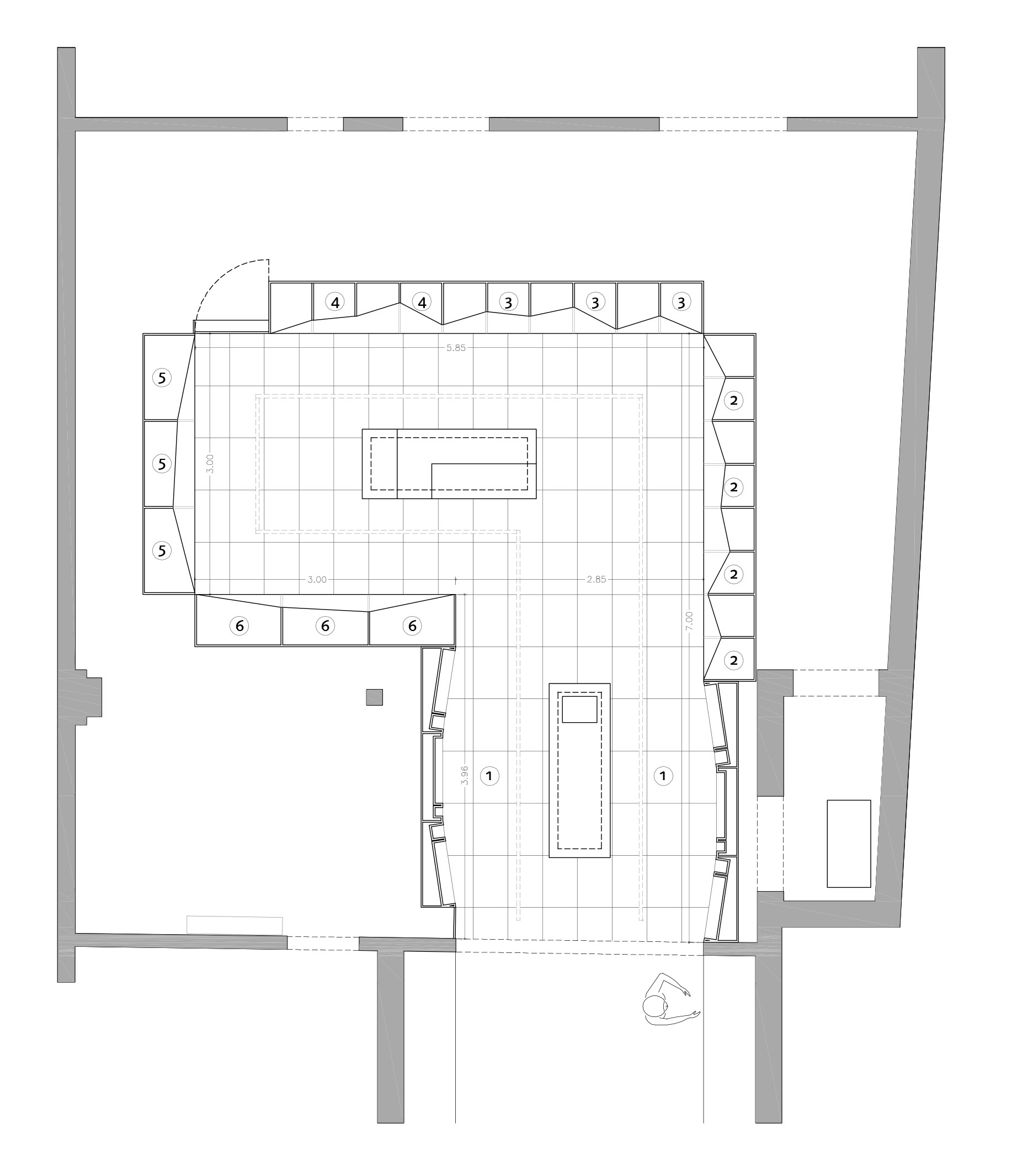
This project is a spatial extension of the Pepa Paper stationery shop in Barcelona, articulated through a modular shelving system fabricated in lacquered MDF. The intervention operates as both display infrastructure and spatial partition, organizing the interior through a systematic, grid-based approach.
The shelving unit is vertically stratified into three functional zones: the lower section provides closed storage, the middle band is designed for product display, and the upper part functions as a branding surface composed of backlit panels. The irregular gesture of the display band is not merely aesthetic—it enhances tangential visibility of products along the corridor-like layout and abstractly references the act of folding paper, reinforcing the brand’s material identity.
Formally, the intervention adapts to the constraints of the existing space, particularly negotiating an L-shaped footprint and the presence of a structural column. The resulting geometry of the shelving allows the furniture to wrap around obstacles while subtly delineating between the retail extension and the retained back-of-house storage area.
The project demonstrates how a modular material system can simultaneously serve practical, spatial, and communicative functions—transforming a constrained interior into a coherent and expressive retail environment





