Work
STUDIO
ACADEMIC
CONTACT
Work
STUDIO
ACADEMIC
CONTACT
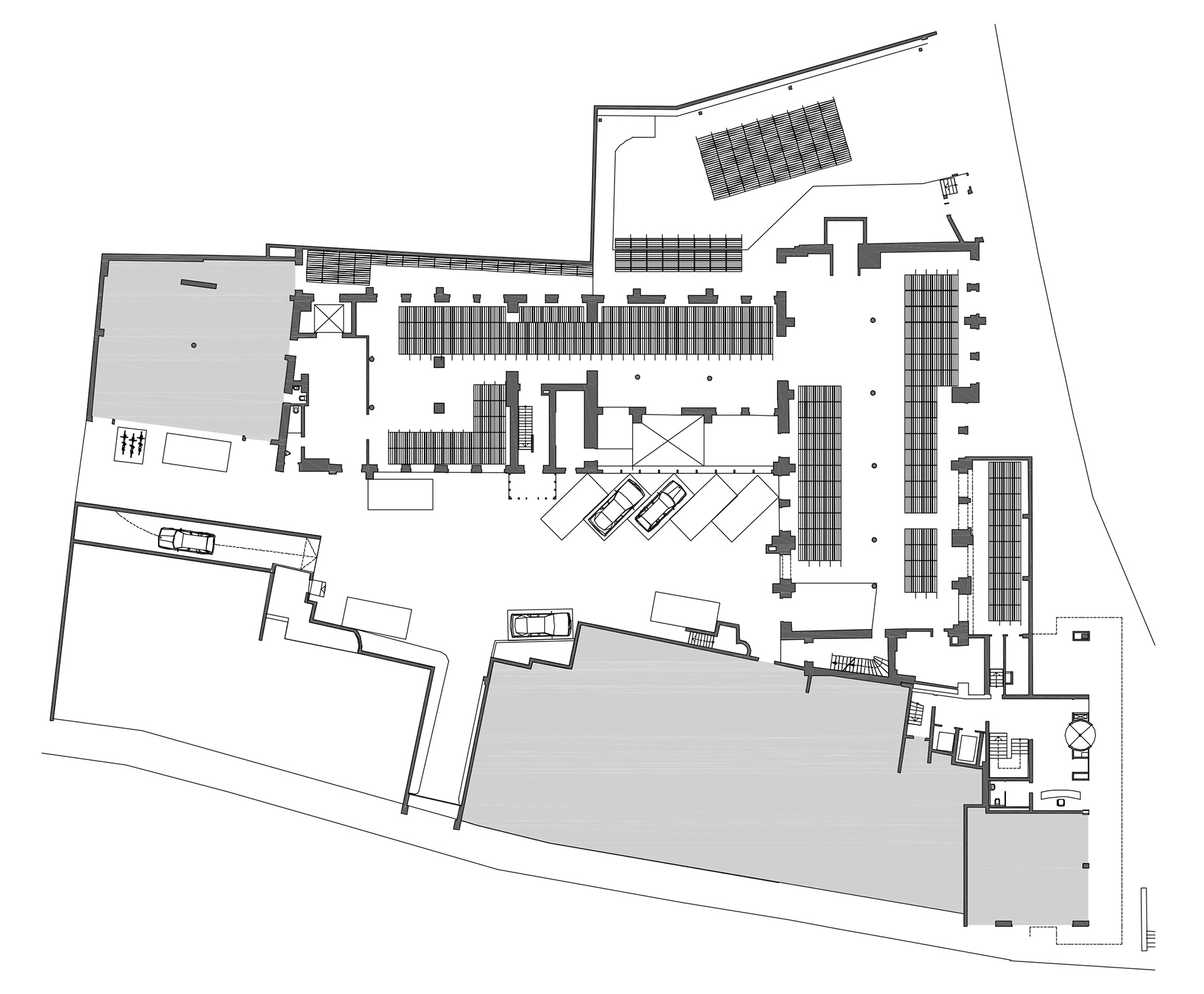
Sidi SHOWROOM Cologne
Refurbishment of the former printer’s Bachem Haus in Cologne to accommodate the SIDI furniture showroom. With Stefano Colli
↑
Back to Top